Get to know what is CIP cleaning station
CIP cleaning station, also known as in-situ cleaning, in-line cleaning or cleaning in place, is the abbreviation of cleaning in place, CIP cleaning system, that is, not to break down the production equipment, but also available in a simple operation method of safe and automatic cleaning system, almost introduced to all food, beverage and pharmaceutical factories, etc. CIP cleaning is actually the internal cleaning of equipment, such as the internal piping, cylinder internal, etc.. Today we get to know the CIP cleaning station.
A、CIP cleaning system equipment composition
CIP cleaning system is determined according to the number of cleaning points, CIP cleaning system is mainly composed of acid tank, alkali tank, water tank, concentrated acid and alkali barrel, heating system, diaphragm pump and PLC touch screen control system. Among them, the acid tank, alkali tank and water tank are heat preservation tanks, in addition to acid and alkali tanks are equipped with agitation system.

The core of CIP cleaning system is CIP cleaning station, the cleaning station can be single tank or multi-tank design, through the setting program by the CIP cleaning system automatically configured cleaning fluid, through the pneumatic control valve and transfer pump, return pump to complete the cleaning fluid delivery, return cycle cleaning, discharge, recovery of the entire cleaning process. The CIP system can be designed as mobile or fixed according to user's requirements.

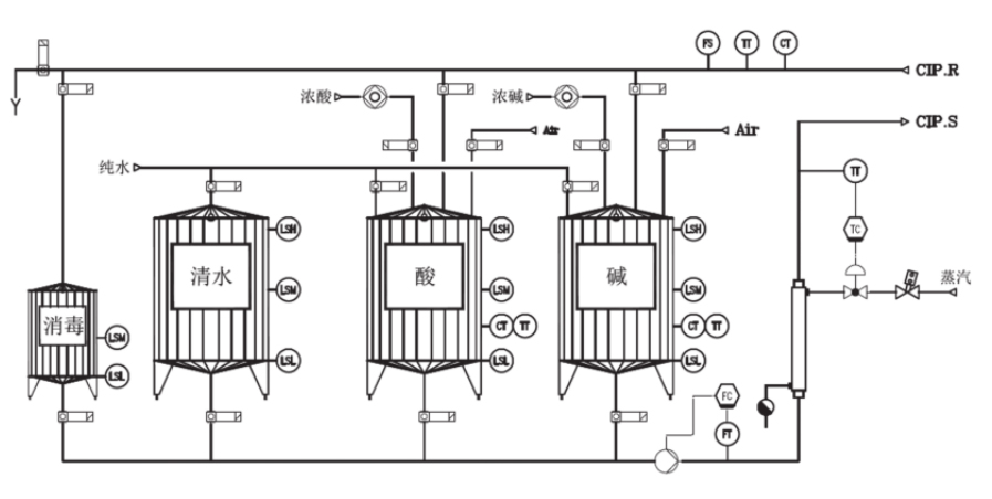
The picture shows the Nailii three tanks CIP online cleaning system
B、 the process flow of CIP cleaning station

The usual principles of cleaning process.
General process adopts 3-step cleaning (water rinse - alkali rinse - final shower)
Aseptic liquid preparation process adopts 5-step cleaning method (water rinse - alkali rinse - water rinse - acid rinse - final shower)
Water rinsing often uses drinking water or recycling back to the final shower water, water temperature can be adjusted according to different residues, generally control the water temperature at 60 ~ 80 ℃. Alkali rinse often uses 1.0 ~ 2.5% NAOH solution, in the absence of cross-contamination under the premise of alkali rinse recovery can be recycled acid rinse often uses 1.0 ~ 2.0% nitric acid; final shower using purified water, sterile dispensing solution using injection water.
C、 the advantages of CIP cleaning device
1、Stable CIP cleaning, using human-machine interface graphic display.
2、Automatic switching of each process parameter, automatic adjustment of cleaning time, PH, temperature and other parameters.
3、It is possible to choose two operation modes of manual control or automatic control.
4、All operations can be recorded, which is convenient for GMP certification.
5、It can rationalize the production plan and improve the production capacity.
6、Compared with hand washing, not only does not affect the cleaning effect due to the difference of operators, but also can improve the quality of its products.
7、It can prevent the danger in cleaning operation and save labor.
8、It can save energy on cleaning agent, steam, water and production cost.
9、It can increase the service life of machine parts.
10、CIP cleaning system has single tank double tank and multi-tank for users to choose, mobile and fixed type.